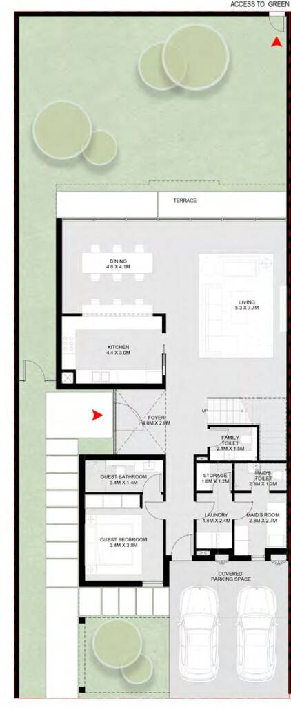
Client4 Bedroom Jouri Hills Townhouse - A | BabylonShareTwitter-newFacebookShare-emailCopy URL to clipboard