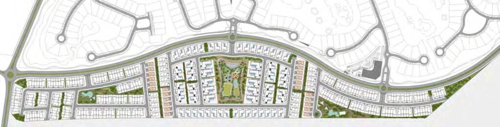
Client5 Bedroom Jouri Hills Villa - A | BabylonShareTwitter-newFacebookShare-emailCopy URL to clipboard